Crassier

Restaurant et bibliothèque/médiathèque scolaire
Etablissement Scolaire Elisabeth de Portes, Crassier

Projektwettbewerb 2014, 1. Preis
Realisierung 2016-2018

Crassier – Restaurant et bibliothèque/médiathèque scolair

© Léo Fabrizio

Crassier – Restaurant et bibliothèque/médiathèque scolair

© Léo Fabrizion

Crassier – Restaurant et bibliothèque/médiathèque scolair

© Léo Fabrizion

Crassier – Restaurant et bibliothèque/médiathèque scolair

© Léo Fabrizio

Crassier – Restaurant et bibliothèque/médiathèque scolair

© Léo Fabrizion

Crassier – Restaurant et bibliothèque/médiathèque scolair

© Léo Fabrizion

Crassier – Restaurant et bibliothèque/médiathèque scolair

© Léo Fabrizio

Crassier – Restaurant et bibliothèque/médiathèque scolair

© Léo Fabrizion

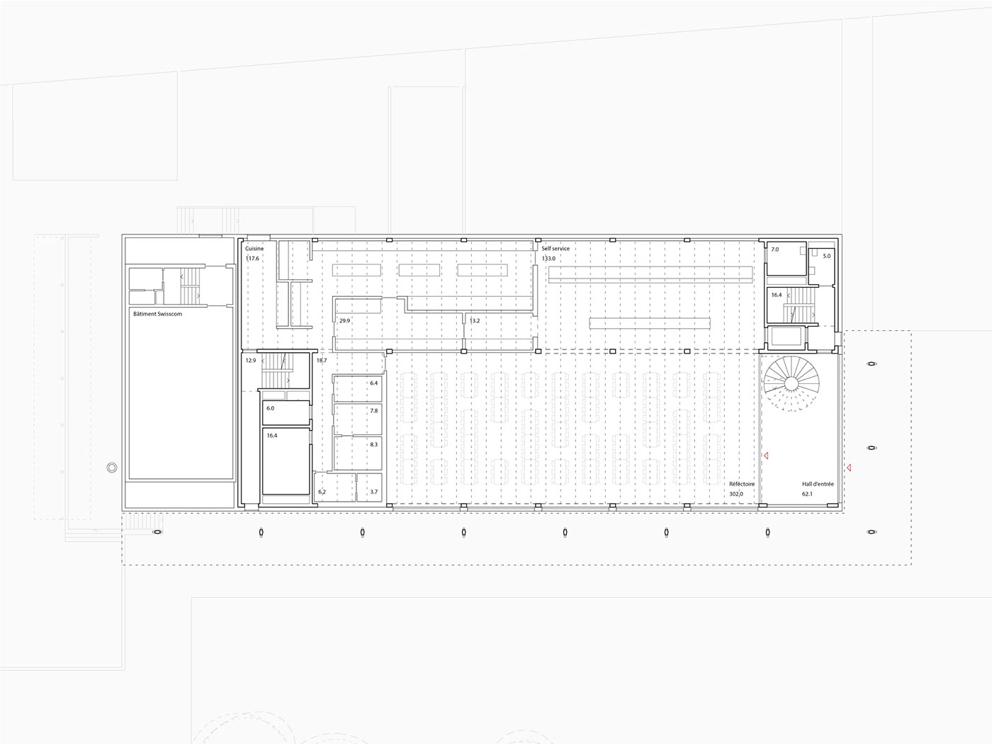
Crassier – Restaurant et bibliothèque/médiathèque scolair

Grundriss Erdgeschoss

Crassier – Restaurant et bibliothèque/médiathèque scolair

Grundriss Obergeschoss

Crassier – Restaurant et bibliothèque/médiathèque scolair

© Léo Fabrizion

Crassier – Restaurant et bibliothèque/médiathèque scolair

© Léo Fabrizio

Crassier – Restaurant et bibliothèque/médiathèque scolair

Querschnitt

Crassier – Restaurant et bibliothèque/médiathèque scolair

Längsschnitt

Crassier – Restaurant et bibliothèque/médiathèque scolair

© Léo Fabrizion

Crassier – Restaurant et bibliothèque/médiathèque scolair

© Léo Fabrizion

Bauherrschaft: Association intercommunale Asse Boiron
Architektur: Christoph Schwander Architekten GmbH
Bauleitung & Kostenkontrolle: Tecbat sàrl, Cheseaux-sur-Lausanne