Sihlquai

Büroumbau
Sihlquai, Zürich

Direktauftrag
Realisierung 2018

Sihlquai – Büroumbau

© Philip Heckhausen

Sihlquai – Büroumbau

© Philip Heckhausen

Sihlquai – Büroumbau

© Philip Heckhausen

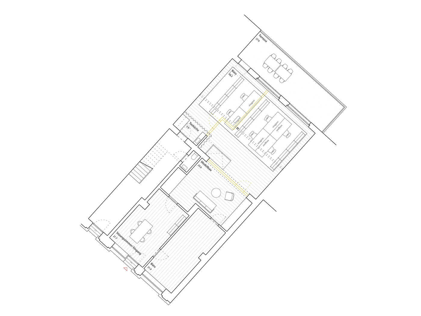
Sihlquai – Büroumbau

Grundriss Erdgeschoss

Bauherrschaft privat
Architektur, Kostenkontrolle & Bauleitung:
Christoph Schwander Architekten GmbH mit Christoph Schmid Architekt ETH