Suva

Sanierungsstudie Bürohaus, Luzern

Projektleitung für Lütolf und Scheuner Architekten GmbH & kunzarchitekten ag

Studienauftrag mit GP-Sumission, 2026

Sanierungsstudie Bürohaus, Luzern
Sanierungsstudie Bürohaus, Luzern

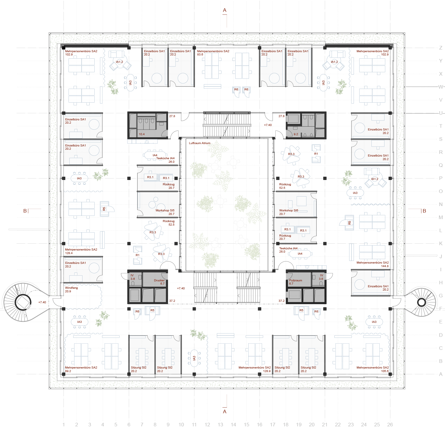
Grundriss Regelgeschoss

Sanierungsstudie Bürohaus, Luzern

Grundriss Dachgeschoss

Sanierungsstudie Bürohaus, Luzern
Sanierungsstudie Bürohaus, Luzern

Klimakonzept

Sanierungsstudie Bürohaus, Luzern

Fassadenschnitt

Sanierungsstudie Bürohaus, Luzern

Bauherrschaft: Suva Luzern
Architektur und Generalplaner: Lütolf und Scheuner Architekten GmbH & kunzarchitekten ag
Landschaftsarchitektur: Zwahlen + Zwahlen AG, Cham